

Bingham Hall
Bingham Hall
Welcome to Bingham Hall, the only large, fully-equipped hall complex in Cirencester with a resident manager. This historical venue is a thriving centre for both private and public functions and has hosted many major events.
Bingham Hall is your ideal venue for meetings, conferences, seminars, entertainment shows, wedding receptions, parties and club events. Our resident manager will work with you to plan your event to the finest detail.
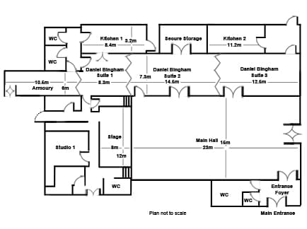
We offer a number of different sized spaces to match your requirements. Our beautiful main hall can accommodate up to 450 seated guests for stage performances or 300 guests for dining. The Daniel Bingham Suite is a flexible space which makes it perfect for smaller events. There are a variety of catering options with our fully-equipped kitchens and bar facilities available on request.
- A variety of suites catering from 30 to 400 guests.
- Hall Manager available on day of your event.
- Stage for live performance, DJ or your favoured group or band.
- Full AVI equipment can be supplied
- Evening parties and late night receptions.
- Seated or banquet style for dining or standing only for parties and proms.
- Large dance area
- Exclusive use of this historic venue.
We have a licence to serve drinks and bar facilities are available on request. There is a secure storeroom available for any drinks and alcohol or food delivered to Bingham Hall before and after your event.




